KRMG2/1306
Numer referencyjny KRMG2/1306
Nieruchomość proponowana przez

Agencja Nieruchomości Śródmieście s.c.
ul. Brodowicza 16
tel. +48 695 282 460
krmg2@tecnocasa.pl
Rodzaj transakcji
wynajem
Kaucja
1700zł
Dostępność
od zaraz
Województwo
małopolskie
Miasto
Kraków
Dzielnica
Prądnik Czerwony
Ulica
Bosaków
Rodzaj nieruchomości
lokal
Forma własności
Własność
Typ zabudowy
blok
Rok budowy
2010
Materiał budynku
beton
Stan techniczny
bardzo dobry
Rynek
Wtórny
Powierzchnia
17m2
Piętro
1
Dostępne media
prąd, woda,gaz
Ilość pokoi
1
Ilość łazienek
1
Kuchnia
aneks kuchenny
Winda
Tak
Wysokość pomieszczeń
2,70m
Typ ogrzewania
elektryczne
Instalacje w budynku
bardzo dobre
Dostępne w pobliżu
parki, szkoły, uniwersytety, sklepy, punkty gastronomiczne
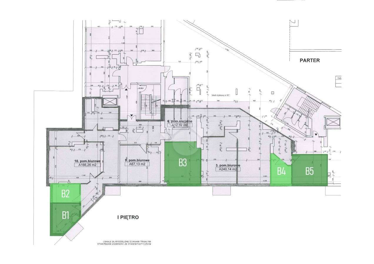
Kraków – Bosaków – Lokal biurowy w nowoczesnym budynku
Mamy przyjemność zaprezentować Państwu dwa lokale biurowe – oznaczony na planie B1 oraz B4 – o powierzchniach około 15 m2 oraz 17 m2, usytuowany na pierwszym piętrze w wyremontowanym bloku z 2010 roku.
– pomieszczenia socjalnego z aneksem kuchennym,
– korytarzy z kanapami pełniącymi funkcje poczekalni,
– łazienki.
NIERUCHOMOŚĆ:
Lokale są w stanie bardzo dobrym, praktycznie gotowym do wejścia. Posiadają niezbędne przyłącza w postaci gniazd elektrycznych oraz ethernetowych.
Budynek, w którym mieszczą się lokale posiada system alarmowy, monitoring, ochronę oraz ogrodzony teren.
MOŻLIWOŚCI:
Nieruchomość świetnie nadaje się dla osób poszukujących małej bądź średniej wielkości lokalu do prac biurowych w doskonałej zacisznej lokalizacji z dobrym dojazdem. Idealnie sprawdzi się dla biura rachunkowego, biura kosztorysowego bądź też biura IT.
Istnieje możliwość wynajęcia dodatkowych 3 lokali oznaczonych na planie:
– B2 – 1500 PLN,
– B3 – 2700 PLN.
– B5 – 2700 PLN.
PARKOWANIE:
W budynku znajduje się podziemny parking (często pojawiają się ogłoszenia miejsc na wynajem), niedaleko usytuowany jest również parking będący poza strefą płatnego parkowania.
KLATKA SCHODOWA:
Do lokali prowadzi zadbana, przestronna klatka schodowa wykończona w wysokim standardzie oraz winda wychodząca bezpośrednio na wejście do biura.
LOKALIZACJA:
Sporym atutem lokali jest ich lokalizacja – nieruchomość znajduje się przy ulicy Bosaków zlokalizowanej niedaleko Al. 29 Listopada oraz III obwodnicy Krakowa, co pozwala na dojazd do ścisłego centrum komunikacją w niecałe 20 minut.
Doskonała lokalizacja pod względem aglomeracji miejskiej:
– odległość do najbliższego przystanku autobusowego: 2 minuty pieszo,
– Uniwersytet Rolniczy – 7 minut pieszo,
– Lewiatan – 1 minuta pieszo,
– Rynek Główny – 10 minut samochodem,
– Bar Mleczny – 1 minuta pieszo,
– Galeria Krakowska – 8 minut samochodem,
– Dworzec Główny PKP/ Dworzec Autobusowy – 10 minut komunikacją.
Budynek znajduje na Prądniku Czerwonym/Olszy w bardzo cichej i spokojnej okolicy. Pomimo tego, że jest to niedaleko centrum Krakowa jest to idealna lokalizacja do prowadzenia prac biurowych, w okolicy znajduje się również mnóstwo obszarów zielonych idealnych do przemieszczania się na rowerze czy wyjścia z na spacer w przerwie od pracy.
CZYNSZ ADMINISTRACYJNY:
Lokal jest bezczynszowy!
Płatny jedynie prąd.
Cena: 1700 PLN brutto + prąd
OFERTA NA WYŁĄCZNOŚĆ
Zapraszamy do umówienia się na prezentację.
Kontakt:
Agencja Nieruchomości Tecnocasa
Oddział XVIII: Śródmieście
31-518 Kraków, ul. Józefa Brodowicza 16
tel: +48 695 282 460
Oferta nie stanowi oferty w rozumieniu Kodeksu Cywilnego, a dane w niej zawarte mają jedynie charakter informacyjny i mogą ulec zmianie. Zgodnie z ustawą o gospodarce nieruchomościami Rozdział 2, Art. 180, pkt 3. przed oglądnięciem nieruchomości należy podpisać standardową umowę pośrednictwa w kupnie. (USTAWA z dnia 21 sierpnia 1997 r. O gospodarce nieruchomościami).
Nieruchomość proponowana przez

Agencja Nieruchomości Śródmieście s.c.
ul. Brodowicza 16
tel. +48 695 282 460
krmg2@tecnocasa.pl