KRMG5/0180 - Tecnocasa

Kraków – Nowa Huta – os. Stalowe – 40,8 m²

KRMG5/0000

Numer referencyjny KRMG5/0180

460 000 PLN 11 274.51 zł za m2 Zadbane 2 pokoje os. Stalowe, 40.80 m2

Nieruchomość proponowana przez

Tecnocasa

Studio Nowa Huta 2 Ł. Krzesiwo, M. Polaczek s.c.

os. Stalowe 5

tel. 693569107 / 579490650
krmg5@tecnocasa.pl

Oferta oddziału

Zapytaj o nieruchomość

Specyfikacja

Finanse

Rodzaj transakcji

sprzedaż

Dostępność

do ustalenia

Lokalizacja

Województwo

małopolskie

Miasto

Kraków

Dzielnica

Nowa Huta

Ulica

os. Stalowe

Nieruchomość

Rodzaj nieruchomości

mieszkanie

Forma własności

Własność

Typ zabudowy

blok

Rok budowy

1950

Materiał budynku

cegła

Stan techniczny

dobry

Rynek

Wtórny

Powierzchnia

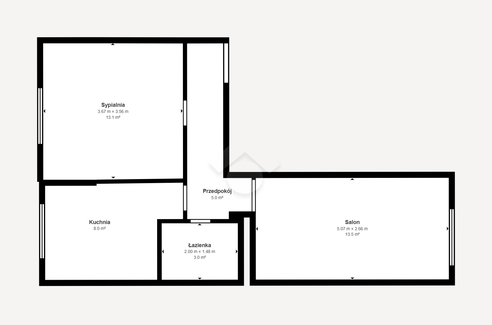
40,8m2

Piętro

4

Dostępne media

prąd, woda, gaz, CO

Specyfikacja

Ilość pokoi

2

Ilość łazienek

1

Kuchnia

osobna, jasna

Winda

Nie

Piwnica

Tak

Wysokość pomieszczeń

2,7m

Typ ogrzewania

miejskie

Instalacje w budynku

wymienione

Opis

Kraków – Nowa Huta – os. Stalowe – 40,8 m²

POSZUKIWANY KLIENT GOTÓWKOWY. NIE MA MOŻLIWOŚCI ZAKUPU MIESZKANIA NA KREDYT HIPOTECZNY.

Nieruchomość:

Oferujemy mieszkanie na sprzedaż o powierzchni 40,8 m², znajdujące się na czwartym piętrze budynku na osiedlu Stalowym. Nieruchomość składa się z dwóch pokoi, oddzielnej kuchni, łazienki oraz przedpokoju. Atutem nieruchomości jest także przynależna piwnica, zapewniająca dodatkową przestrzeń do przechowywania.

Stan prawny:

Mieszkanie stanowi pełną własność z księgą wieczystą.

Ekspozycja:

wschód – salon

zachód – sypialnia, kuchnia

Stan mieszkania:

Mieszkanie oferuje szerokie możliwości aranżacyjne, dzięki czemu łatwo dostosować je do indywidualnych potrzeb. Wszystkie okna zostały wymienione na plastikowe, co gwarantuje dobrą izolację termiczną i akustyczną. Ogrzewanie oraz ciepła woda dostarczane są z miejskiej sieci MPEC. Budynek jest dobrze utrzymany i posiada dodatkowe udogodnienia, takie jak wózkownia.

Stan budynku:
Budynek pochodzi z lat 50. XX wieku. Wzniesiony w technologii tradycyjnej – cegła.

Klatka schodowa przestronna i zadbana.

Lokalizacja:

Mieszkanie znajduje się w doskonale skomunikowanej i w pełni rozwiniętej części miasta. W najbliższej okolicy dostępne są liczne usługi, sklepy, apteka, a także szkoły, przedszkola i place zabaw. W pobliżu położone są również atrakcyjne tereny wypoczynkowe, takie jak Zalew Nowohucki, Łąki Nowohuckie czy Nowohuckie Centrum Kultury. Lokalizacja ta oferuje idealne połączenie spokojnego otoczenia z wygodą życia w mieście.

Komunikacja:

ok. 5 minut do przystanku tramwajowego „Struga”.

Nieruchomość znajduje się w dobrze skomunikowanej części Krakowa, niedaleko Placu Centralnego. Bliski dojazd do drogi ekspresowej „S7” oraz autostrady „A4”.

Chcesz kupić nieruchomość na kredyt?
Bezpłatnie zbadaj swoją zdolność kredytową z naszym zaufanym ekspertem kredytowym.
Kiron Partner Finansowy tel. 696 339 134 Informujemy, że zgodnie z ustawą z dnia 21 sierpnia 1997 r o gospodarce nieruchomościami (Dz.U. z 1997 r. nr 115, poz. 741) usługa pośrednictwa jest wykonywana na mocy pisemnej umowy.W trakcie prezentacji nieruchomości konieczne jest podpisanie umowy pośrednictwa w kupnie nieruchomości. Za wykonaną usługę polegającą na doprowadzeniu do podpisania umowy kupna / sprzedaży pobierana jest prowizja.

Zapraszamy na prezentację!

Poproś o informacje

Nieruchomość proponowana przez

Tecnocasa

Studio Nowa Huta 2 Ł. Krzesiwo, M. Polaczek s.c.

os. Stalowe 5

tel. 693569107 / 579490650
krmg5@tecnocasa.pl

Oferta oddziału