KRMM3/0380
Numer referencyjny KRMM3/0380
Nieruchomość proponowana przez

Agencja Nieruchomości Nowa Wieś Tomasz Wójciak, Maciej Uchański s.c.
Juliusza Lea 18/1A
tel. 518 596 415
krmm3@tecnocasa.pl
Rodzaj transakcji
sprzedaż
Miasto
Zawoja
Rodzaj nieruchomości
dzialka
Forma własności
Własność
Powierzchnia
1 282m2
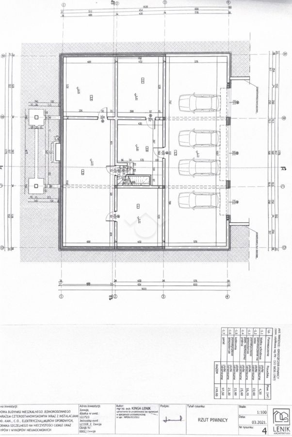
Piwnica
Tak
Działka budowlana w Zawoi – około 70 km od Krakowa
Lokalizacja: Zawoja
Cena: 450 000 zł
Powierzchnia działki: 0,1282 ha + 249,60 m² fundamentu
Stan prawny:
Pełna własność z Księgą Wieczystą
Działka jest położona w spokojnej, widokowej części Zawoi, z piękną panoramą na góry i okoliczne lasy. Idealne miejsce zarówno pod dom całoroczny, jak i inwestycję turystyczną (np. pensjonat, dom wakacyjny). Dodatkowo działka znajduje się blisko szlaków turystycznych, terenów rekreacyjnych oraz natury. Jest to świetna baza wypadowa w rejonach Babiej Góry.
Podstawowe informacje o działce:
• Powierzchnia działki: 0,1282 ha (1282 m²)
• Wykonany fundament o powierzchni 249,60 m²
• Duża piwnica/garaż pod budynkiem na 4 samochody
• Teren przygotowany pod dalszą budowę
• Dojazd drogą utwardzoną
Układ fundamentu:
• Piwnica
• Klatka Schodowa: 4,30 m²
• Pomieszczenie na wino: 22,60 m²
• Pomieszczenie Gospodarcze :55,70 m²
• Pomieszczenie techniczne: 25,60 m²
• Kotłownia: 22,60 m²
• Pomieszczenie gospodarcze :21,30 m²
• Garaż: 97,50 m²
Posiadamy projekt całego domu.
OFERTA NA WYŁĄCZNOŚĆ!
Zapraszamy do kontaktu z naszym biurem w celu uzyskania szczegółowych informacji oraz umówienia się na prezentację działki.
Kontakt:
Agencja Nieruchomości Tecnocasa
Oddział XV: Nowa Wieś – Krowodrza
ul. Juliusza Lea 18/1a
tel: +48 518 596 415
krmm3@tecnocasa.pl
Facebook: Tecnocasa Nowa Wieś
Informujemy, że przed obejrzeniem nieruchomości podpisujemy umowę pośrednictwa w kupnie.
Nieruchomość proponowana przez

Agencja Nieruchomości Nowa Wieś Tomasz Wójciak, Maciej Uchański s.c.
Juliusza Lea 18/1A
tel. 518 596 415
krmm3@tecnocasa.pl