KRMO1/0138
Numer referencyjny KRMO1/0138
Nieruchomość proponowana przez

Agencja Nieruchomosci Olsza M.Walczyk, J. Gał s.c.
Miechowity 19c
tel. 666 605 183
krmo1@tecnocasa.pl
Czynsz
540zł
Dostępność
od zaraz
Województwo
małopolskie
Miasto
Kraków
Dzielnica
Olsza
Ulica
Ułanów
Rodzaj nieruchomości
mieszkanie
Forma własności
Własność
Typ zabudowy
blok
Rok budowy
1965
Materiał budynku
konstrukcja mieszana
Stan techniczny
do remontu
Rynek
Wtórny
Powierzchnia
38m2
Piętro
2
Dostępne media
prąd, woda, ogrzewanie
Ilość pokoi
2
Ilość łazienek
1
Kuchnia
osobna z oknem
Winda
Nie
Piwnica
Tak
Typ ogrzewania
MPEC
Dostępne w pobliżu
- przystanek 50 m od nieruchomości
Kraków – Olsza – ul. Ułanów
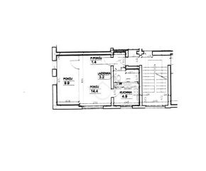
Mamy przyjemność zaprezentować Państwu dwupokojowe mieszkanie na sprzedaż o powierzchni 38 m2, zlokalizowane w północnej części Krakowa przy ulicy Ułanów.
We can speak English. If you’re interested in this apartment, don’t hesitate to contact us
Najważniejsze informacje:
– Piętro 2/4
– Osobna jasna kuchnia
– Ogrzewanie i ciepła woda z sieci miejskiej
MIESZKANIE:
Nieruchomość położona jest na drugim piętrze w zadbanym, czteropiętrowym bloku wykonanym z konstrukcji mieszanej, wybudowanym w 1965 roku.
Składa się z:
– Dwóch pokoi,
– Osobnej jasnej kuchni
– Łazienki,
– Przedpokoju,
Do mieszkania przynależy również piwnica.
STAN MIESZKANIA: do remontu
Ogrzewanie i ciepła woda z sieci miejskiej.
STAN PRAWNY: odrębna własność z księgą wieczystą
STAN BUDYNKU: Zadbany czteropiętrowy blok z 1965 roku. Ściany konstrukcyjne z poprzeczne prefabrykowane żwiro-betonowe typu „Żerań”, ścianki działowe z cegły.
INFORMACJE TECHNICZNE:
– Ogrzewanie: miejskie (MPEC)
– Woda: z sieci miejskiej (MPEC)
FINANSE:
– Czynsz: ok. 540 zł
LOKALIZACJA:
Mieszkanie znajduje się w niezwykle atrakcyjnej i dobrze skomunikowanej części Krakowa, na pograniczu dzielnic Stare Miasto i Grzegórzki, co gwarantuje zarówno spokój, jak i bezpośrednią bliskość wszystkich atrakcji miasta.
Komunikacja i dojazd:
Bezpośredni dojazd do centrum: Samochodem do Rynku Głównego lub Dworca Głównego dostaniesz się w zaledwie około 10 minut.
Doskonała komunikacja miejska: W odległości jedynie 700 metrów (ok. 7-8 minut spacerem) znajduje się ważny węzeł komunikacyjny „Tauron Arena Kraków Wieczysta”, obsługiwany przez liczne linie autobusowe i tramwajowe. Dzięki temu dojazd w głąb centrum (np. na Plac Inwalidów lub Dworzec Główny) komunikacją miejską zajmuje około 15 minut.
Przyszłościowa inwestycja: W okolicy trwa budowa nowej linii tramwajowej z Mistrzejowic, której planowane zakończenie prac przypada na II kwartał 2026 roku. Inwestycja ta znacząco poprawi i tak już doskonałe połączenia z północnymi częściami miasta.
Otoczenie i infrastruktura:
Lokalizacja oferuje doskonałe zaplecze codziennych udogodnień oraz rozrywki:
-Obiekty sportowo-widowiskowe: W bezpośrednim sąsiedztwie znajduje się Tauron Arena Kraków, na której organizowane są największe koncerty i wydarzenia sportowe.
-Zakupy: W kilka minut można dotrzeć do Galerii M1 z wieloma sklepami, marketami i punktami usługowymi. W okolicy znajdują się także liczne sklepy spożywcze (w tym dyskonty) oraz apteka.
-Rekreacja i wypoczynek: Tuż obok rozciąga się rozległy Park Lotników Polskich – idealne miejsce na spacery, jogging czy rowerowe przejażdżki.
-Życie codzienne: Sąsiedztwo zapewnia pełną infrastrukturę, w tym przedszkole, szkoły, a także różnorodne lokalne gastronomiczne – od kawiarni po restauracje. W okolicy znajduje się również kościół.
-Edukacja: Mieszkanie znajduje się w lokalizacji idealnej dla studentów. Bezpośredni dojazd na AWF i Politechnikę zajmuje niecałe 10 minut, ponadto na Uniwersytet Ekonomiczny znajduje się ok 20 minut komunikacją od samej nieruchomości.
Nieruchomość położona jest w dynamicznie rozwijającej się części miasta, która łączy w sobie spokój mieszkaniowej okolicy z żywiołowością i energią centrum. Doskonała komunikacja, zarówno obecna, jak i ta przyszłościowa, oraz kompletna infrastruktura czynią tę lokalizację idealnym wyborem dla osób ceniących sobie wygodę, czas i bliskość wszystkiego, co w Krakowie najlepsze.
Cena ofertowa: 549 000 PLN (do negocjacji)
Szanowni Państwo, jest to oferta na wyłączność w naszym biurze – więcej informacji pod numerem telefonu
Chcesz kupić nieruchomość na kredyt? Bezpłatnie zbadaj swoją zdolność kredytową z naszym zaufanym ekspertem kredytowym – Kiron Partner Finansowy.
———————————————————————————————————————————
Informujemy, że zgodnie z ustawą z dnia 21 sierpnia 1997 r o gospodarce nieruchomościami (Dz.U. z 1997 r. nr 115, poz. 741) usługa pośrednictwa jest wykonywana na mocy pisemnej umowy. W trakcie prezentacji nieruchomości konieczne jest podpisanie umowy pośrednictwa w kupnie nieruchomości. Za wykonaną usługę polegającą na doprowadzeniu do podpisania umowy kupna/sprzedaży pobierana jest prowizja.
Treść niniejszego ogłoszenia nie stanowi oferty handlowej w rozumieniu Kodeksu Cywilnego.
Nieruchomość proponowana przez

Agencja Nieruchomosci Olsza M.Walczyk, J. Gał s.c.
Miechowity 19c
tel. 666 605 183
krmo1@tecnocasa.pl