KRMO4/0344
Numer referencyjny KRMO4/0344
Nieruchomość proponowana przez

Studio Nowa Huta 2 Ł. Krzesiwo, M. Polaczek, s.c.
os. Bohaterów Września 26A
tel. 579-490-801
krmo4@tecnocasa.pl
Rodzaj transakcji
wynajem
Kaucja
4600zł
Czynsz
670zł
Dostępność
od zaraz
Województwo
małopolskie
Miasto
Kraków
Dzielnica
Miestrzejowice
Ulica
os. Piastów
Rodzaj nieruchomości
mieszkanie
Forma własności
Własność
Typ zabudowy
blok
Rok budowy
2008
Materiał budynku
beton
Stan techniczny
po remoncie
Rynek
Wtórny
Powierzchnia
52m2
Piętro
3
Dostępne media
woda, prąd, C.O.
Ilość pokoi
2
Ilość łazienek
1
Ilość balkonów
1
Kuchnia
aneks
Winda
Tak
Piwnica
Tak
Wysokość pomieszczeń
2,60m
Typ ogrzewania
centralne, miejskie
Instalacje w budynku
prąd, woda, C.O.
Inne
balkon, miejsce postojowe, piwnica
Dodatkowe udogodnienia
domofon
Dostępne w pobliżu
sklepy (Lidl, Biedronka), punkty usługowe, siłownia, punkty medyczne, przedszkole, szkoła, siłownia, restauracja, Park Mistrzejowice
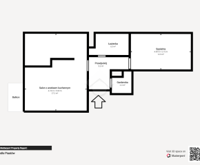
Kraków – Nowa Huta – Mistrzejowice – 52m²
NIERUCHOMOŚĆ:
Proponujemy Państwu do wynajęcia nowoczesne mieszkanie o powierzchni 52 m², zlokalizowane na 3. piętrze w bloku z 2008 roku. W budynku znajduje się winda. Nieruchomość znajduje się w dzielnicy Mistrzejowice na osiedlu Piastów.
W skład mieszkania wchodzą:
Do mieszkania przynależy również piwnica (ok. 3 m2).
STAN MIESZKANIA:
Mieszkanie w bardzo dobrym stanie technicznym, świeżo odświeżone, w pełni wyposażone i gotowe do zamieszkania. W salonie z aneksem kuchennym znajduje się zabudowa, piekarnik, płyta indukcyjna, okap, pełnowymiarowa lodówka z zamrażarką, zmywarka, zlew oraz stolik z czterema krzesłami. W części dziennej salonu znajduje się rozkładany narożnik, stolik kawowy, komoda oraz szafka z miejscem na telewizor. Z pomieszczenia jest wyjście na balkon. W sypialni znajduje się rozkładana sofa, pojemna szafa oraz biurko z krzesłem. Łazienka w pełni wykończona, wyposażona w szafkę z umywalką, lustro, toaletę, wannę, szafkę na kosmetyki oraz pralkę.
EKSPOZYCJA:
Dwustronna: zachód-wschód
BUDYNEK:
Mieszkanie znajduje się w zadbanym, wielorodzinnym budynku z 2008 roku. Wejście do bloku zabezpieczone jest kodem oraz domofonem, a klatka schodowa utrzymana jest w bardzo dobrym stanie. Do lokalu przynależy piwnica o powierzchni 3,46 m².
Dla mieszkańców dostępny jest ogólnodostępny parking za szlabanem, przeznaczony wyłącznie dla mieszkańców budynku.
Budynek przystosowany jest do potrzeb osób z niepełnosprawnościami.
LOKALIZACJA:
Budynek położony jest w zielonej, spokojnej okolicy, sprzyjającej wypoczynkowi. W pobliżu znajduje się pełna infrastruktura handlowo-usługowa – restauracje, sklepy (Lidl, Biedronka), siłownia My Fitness Place oraz punkty medyczne. W bezpośrednim sąsiedztwie mieści się pętla tramwajowa, a zaledwie 10 minut spacerem dzieli mieszkanie od Parku na osiedlu Piastów.
Dodatkowym atutem jest przystanek Szybkiej Kolei Aglomeracyjnej (SKA) „Kraków Piastów”, zapewniający szybkie połączenie z centrum miasta i innymi częściami Krakowa.
KOMUNIKACJA:
5 minut pieszo do przystanku autobusowo-tramwajowego „os. Piastów”,
2 minuty pieszo do przystanku autobusowego „Urząd Skarbowy Nowa Huta”
4 minuty pieszo do przystanku SKA „Kraków Piastów”.
OPŁATY:
2300 zł odstępne + ok. 670 zł czynsz + woda + śmieci + media (prąd)
Kaucja zwrotna w wysokości 4600 zł (do ustalenia).
Wymagany najem okazjonalny.
Brak akceptacji zwierząt.
Informujemy, że zgodnie z ustawą z dnia 21 sierpnia 1997 r o gospodarce nieruchomościami (Dz.U. z 1997 r. nr 115, poz. 741) usługa pośrednictwa jest wykonywana na mocy pisemnej umowy. W trakcie prezentacji nieruchomości konieczne jest podpisanie umowy pośrednictwa w kupnie nieruchomości. Za wykonaną usługę polegającą na doprowadzeniu do podpisania umowy przeniesienia własności pobierane jest wynagrodzenie.
Bądź na bieżąco! Facebook: Tecnocasa Mistrzejowice – Agencja Nieruchomości, Instagram: tecnocasa_mistrzejowice
Zapraszamy na prezentację nieruchomości!
Nieruchomość proponowana przez

Studio Nowa Huta 2 Ł. Krzesiwo, M. Polaczek, s.c.
os. Bohaterów Września 26A
tel. 579-490-801
krmo4@tecnocasa.pl