KRMR4/0269
Numer referencyjny KRMR4/0269
Nieruchomość proponowana przez

Agencja Nieruchomości Wola Duchacka s.c.
Walerego Sławka 25/LU3
tel. 881487880
krmr4@tecnocasa.pl
Rodzaj transakcji
sprzedaż
Dostępność
od zaraz
Miasto
Kraków
Dzielnica
Wola Duchacka
Ulica
Malborska
Rodzaj nieruchomości
lokal
Forma własności
Własność
Typ zabudowy
kamienica
Materiał budynku
cegła
Stan techniczny
Bardzo dobry
Rynek
Wtórny
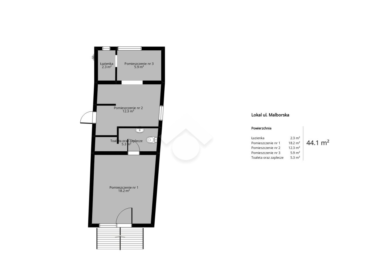
Powierzchnia
44,10m2
Piętro
Parter
Dostępne media
Woda, prąd, gaz, kanalizacja
Ilość pokoi
2
Ilość łazienek
1
Winda
Nie
Piwnica
Nie
Typ ogrzewania
Elektryczne
Instalacje w budynku
Dobry
Tecnocasa prezentuje na sprzedaż lokal mieszkalny zlokalizowany nieopodal C.H. Bonarka przy ul. Malborskiej na Podgórzu Duchackim w Krakowie.
Najważniejsze informacje:
Dodatkowy atut inwestycyjny:
Lokal frontowy od strony ulicy jest w pełni przygotowany pod usługi kosmetyczne – wcześniej funkcjonował tam gabinet kosmetyczny specjalizujący się w makijażu permanentnym. Układ, instalacje oraz standard wykończenia pozwalają na natychmiastowe rozpoczęcie działalności bez dodatkowych inwestycji. Idealne miejsce na salon kosmetyczny, beauty, gabinet estetyczny lub fryzjerski.
Lokalizacja:
Nieruchomość położona jest przy ul. Malborskiej, tuż obok Centrum Handlowego Bonarka – jednego z największych kompleksów handlowo-usługowych w Krakowie. W bezpośrednim sąsiedztwie znajdują się liczne sklepy, punkty usługowe, restauracje, siłownie oraz kino, co znacząco podnosi atrakcyjność lokalu dla najemców.
W odległości kilku kroków znajduje się przystanek autobusowy „Malborska Szkoła”, zapewniający szybkie połączenie z centrum miasta. Dojazd do ścisłego centrum Krakowa zajmuje około 15–20 minut.
Dodatkowym atutem jest łatwy dostęp do głównych arterii komunikacyjnych, obwodnicy oraz autostrady, co umożliwia szybki wyjazd z miasta w każdym kierunku.
Standard wykończenia:
Stan prawny:
Finanse
Cena: 535 000 zł
Nie przegap okazji!
To wyjątkowa propozycja dla inwestorów poszukujących stabilnego źródła dochodu oraz bezpiecznej lokaty kapitału w jednej z najbardziej perspektywicznych lokalizacji Krakowa. Nieruchomość gotowa do natychmiastowego przejęcia i generowania zysków.
Nieruchomość proponowana przez

Agencja Nieruchomości Wola Duchacka s.c.
Walerego Sławka 25/LU3
tel. 881487880
krmr4@tecnocasa.pl