WRMN1/0171
Numer referencyjny WRMN1/0171
Nieruchomość proponowana przez

Studio Nadodrze s.c.
ul. Łokietka 2
tel. +48733240623
wrmn1@tecnocasa.pl
Rodzaj transakcji
sprzedaż
Dostępność
od zaraz
Województwo
dolnośląskie
Miasto
Wrocław
Dzielnica
Nadodrze
Ulica
Rostafińskiego
Rodzaj nieruchomości
mieszkanie
Forma własności
Własność
Typ zabudowy
kamienica
Rok budowy
1945
Materiał budynku
cegła
Stan techniczny
do remontu
Rynek
Wtórny
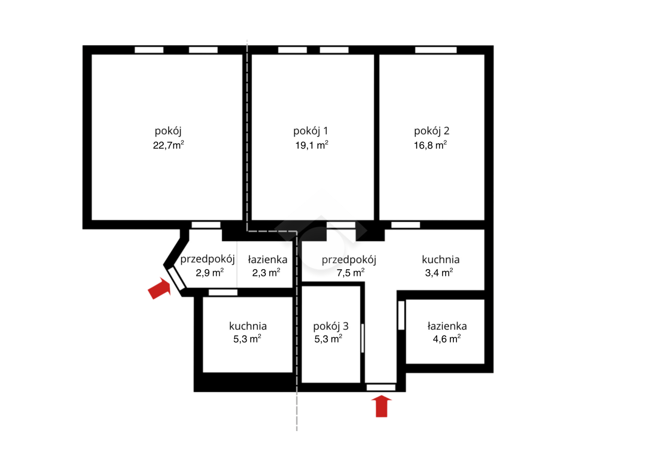
Powierzchnia
89,9m2
Piętro
wysoki parter
Dostępne media
Ogrzewanie i podgrzanie wody elektryczne
Ilość pokoi
4
Ilość łazienek
2
Kuchnia
dwie, osobne
Winda
Nie
Piwnica
Tak
Wysokość pomieszczeń
3,2m
Typ ogrzewania
elektryczne
Instalacje w budynku
dobry stan
Dodatkowe udogodnienia
piwnica, dwie niezależne nieruchomości
Dostępne w pobliżu
Plac Św. Macieja – 150 m Sklep „Żabka” – 210 m Paczkomat InPost – 350 m Sklep „Biedronka” – 450 m Wyspa Słodowa – 600 m Uniwersytet Wrocławski – 800 m Dworzec Wrocław Nadodrze – 950 m Rynek – 1,3 km Osiedle przyjazne dla zwierząt. W okolicy znajdują się liczne parki i skwerki, gdzie można spędzić czas na świeżym powietrzu ze swoim pupilem.
Wrocław – Nadodrze – ul. Rostafińskiego
Szukasz mieszkania inwestycyjnego? Zależy Ci na dobrej lokalizacji w centrum Wrocławia?
Nie szukaj dalej! Ta oferta jest właśnie dla Ciebie!
NIERUCHOMOŚĆ:
Proponujemy Państwu na sprzedaż mieszkanie przy ul. Rostafińskiego, oddalone o zaledwie 20 minut spacerem od Rynku we Wrocławiu. Mieszkanie o łącznej powierzchni 89,90 m2, znajduje się na wysokim parterze w kamienicy. Do mieszkania przynależy piwnica.
Mieszkanie jest podzielone na dwie niezależne nieruchomości. Do każdej z części mieszkania jest osobne wejście z klatki schodowej. Istnieje możliwość wydzielenia osobnych ksiąg wieczystych.
W skład nieruchomości wchodzą:
Mieszkanie 1:
Mieszkanie 2:
STAN MIESZKANIA:
Mieszkanie 1 (kawalerka):
Obecnie mieszkanie jest w trakcie generalnego remontu. Instalacja elektryczna oraz wodno-kanalizacyjna zostały wymienione na nowe. Wymieniono również okna na plastikowe.
Mieszkanie 2 (3-pokojowe):
Mieszkanie w stanie do generalnego remontu. Instalacja elektryczna oraz wodno-kanalizacyjna do wymiany. Okna w tej części nie zostały jeszcze wymienione na nowe i są drewniane.
MEDIA:
Ogrzewanie i podgrzanie wody elektryczne.
STAN BUDYNKU:
Trzypiętrowa kamienica w dobrym stanie.
EKSPOZYCJA:
Ekspozycja okien północno-wschodnia.
LOKALIZACJA:
Wrocławskie Nadodrze to jedno z najbardziej urokliwych osiedli w mieście Wrocław, położone na północnym brzegu rzeki Odry. Charakteryzuje się unikalnym połączeniem zabytkowej architektury z nowoczesnymi inwestycjami oraz kulturalną różnorodnością.
Spacerując uliczkami Nadodrza, można podziwiać kolorowe murale, które zdobią fasady budynków i dodają miejskiej przestrzeni niepowtarzalnego charakteru.
Potencjał osiedla Wrocławskiego Nadodrza jest ogromny. Dzięki dogodnej lokalizacji w bliskim sąsiedztwie centrum miasta oraz łatwemu dostępowi do transportu publicznego, osiedle to przyciąga zarówno mieszkańców, jak i turystów. Z uwagi na swoje unikalne cechy i kreatywny duch, Nadodrze ma potencjał stać się miejscem innowacji, przedsiębiorczości i rozwoju społeczno-kulturalnego.
KOMUNIKACJA:
3 minuty pieszo do przystanku tramwajowego/autobusowego „Paulińska” (linie: 7, 14, 15, 132, 144).
NAJBLIŻSZA OKOLICA:
Osiedle przyjazne dla zwierząt. W okolicy znajdują się liczne parki i skwerki, gdzie można spędzić czas na świeżym powietrzu ze swoim pupilem.
STAN PRAWNY:
Pełna własność z księgą wieczystą.
PODSUMOWANIE:
Istnieje możliwość dokupienia miejsca parkingowego, które znajduje się niedaleko nieruchomości.
CENA: 780 000 zł
Zapraszamy do umówienia się na bezpłatną prezentację nieruchomości.
Agencja Nieruchomości Tecnocasa
Oddział III Nadodrze
Ul. Łokietka 2/1B
tel. 733 240 723, 733 240 623
Aby być na bieżąco, zaobserwuj nas na naszych mediach społecznościowych:
Instagram: tecnocasa_nadodrze
Facebook: Tecnocasa Nadodrze – Agencja Nieruchomości Oddział III Wrocław
Nieruchomość proponowana przez

Studio Nadodrze s.c.
ul. Łokietka 2
tel. +48733240623
wrmn1@tecnocasa.pl