KRMM2/1823
Numer referencyjny KRMM2/1823
Nieruchomość proponowana przez

Studio Stare Miasto T. Sarata, M. Polaczek s.c.
ul. Łobzowska 2
tel. 600 638 099
krmm2@tecnocasa.pl
Rodzaj transakcji
wynajem
Czynsz
3800zł
Dostępność
od zaraz
Województwo
małopolskie
Miasto
Kraków
Dzielnica
Stare Miasto
Ulica
Asnyka
Rodzaj nieruchomości
mieszkanie
Forma własności
Własność
Typ zabudowy
kamienica
Materiał budynku
cegła
Stan techniczny
Dobry
Rynek
Wtórny
Powierzchnia
43m2
Piętro
parter
Dostępne media
prąd, gaz
Ilość pokoi
2
Ilość łazienek
1
Piwnica
Tak
Typ ogrzewania
gazowe
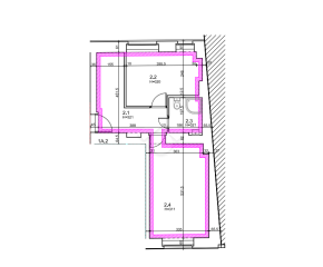
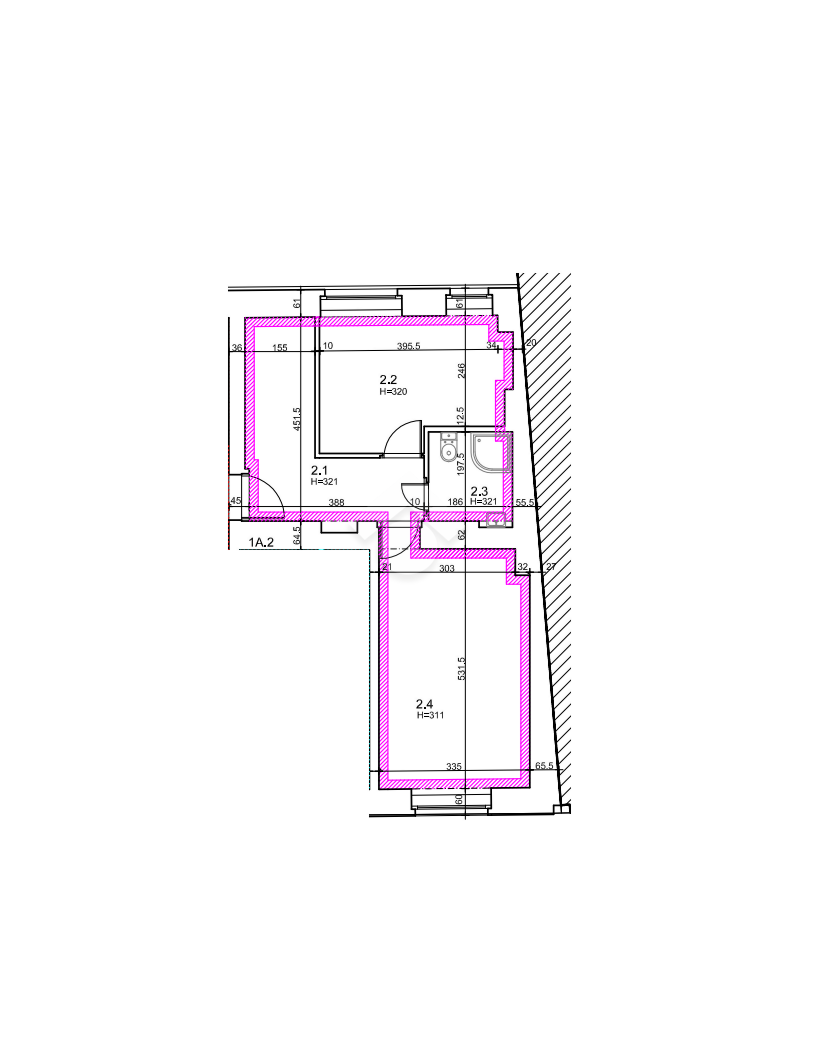
Kraków – Stare Miasto – ul. Asnyka – 43m2
Nieruchomość: Lokal użytkowy o powierzchni 43 m2 na parterze tradycyjnej kamienicy z okresu międzywojennego. Składa się z dwóch pokoi, toalety i korytarza. Dwustronna ekspozycja i funkcjonalny układu umożliwiają zaadaptowanie trzech pokoi w łatwy sposób. Ogrzewanie gazowe.
Do lokalu przynależy piwnica o powierzchni około 11 m2.
Stan lokalu: Do odświeżenia – lokal do własnej aranżacji, z możliwością przystosowania zarówno pod lokal mieszkalny jak i usługowy.
Stan budynku: Kamienica w bardzo dobrym stanie z zadbaną klatką schodową oraz wymienionymi instalacjami.
Lokalizacja: Budynek znajduje się w jednej z najciekawszych lokalizacji w Krakowie, tuż przy Plantach Krakowskich. W pobliżu mnóstwo sklepów i punktów usługowych. W kilka minut pieszo można dojść do Rynku Głównego.
Opłaty: 3800 zł + czynsz administracyjny 200 zł + media wg zużycia prąd, woda, gaz,wywóz śmieci.
Powyższa oferta ma charakter informacyjny i nie stanowi oferty handlowej w rozumieniu art. 66 §1 Kodeksu Cywilnego.
Zgodnie z ustawą o gospodarce nieruchomościami Rozdział 2, Art. 180, pkt 3. przed oglądnięciem nieruchomości należy podpisać standardową umowę pośrednictwa w kupnie. (USTAWA z dnia 21 sierpnia 1997 r. O gospodarce nieruchomościami).
Kontakt:
Agencja Nieruchomości Studio Stare Miasto
Oddział XIV: Stare Miasto, Rynek Główny
ul. Łobzowska 2
31-140 Kraków
Nieruchomość proponowana przez

Studio Stare Miasto T. Sarata, M. Polaczek s.c.
ul. Łobzowska 2
tel. 600 638 099
krmm2@tecnocasa.pl