KRMM2/1812
Numer referencyjny KRMM2/1812
Nieruchomość proponowana przez

Studio Stare Miasto T. Sarata, M. Polaczek s.c.
ul. Łobzowska 2
tel. 600 638 099
krmm2@tecnocasa.pl
Rodzaj transakcji
sprzedaż
Czynsz
360zł
Dostępność
od zaraz
Województwo
małopolskie
Miasto
Kraków
Dzielnica
Stare Miasto
Ulica
Łobzowska
Rodzaj nieruchomości
mieszkanie
Forma własności
Własność
Typ zabudowy
kamienica
Materiał budynku
cegła
Stan techniczny
Bardzo dobry
Rynek
Wtórny
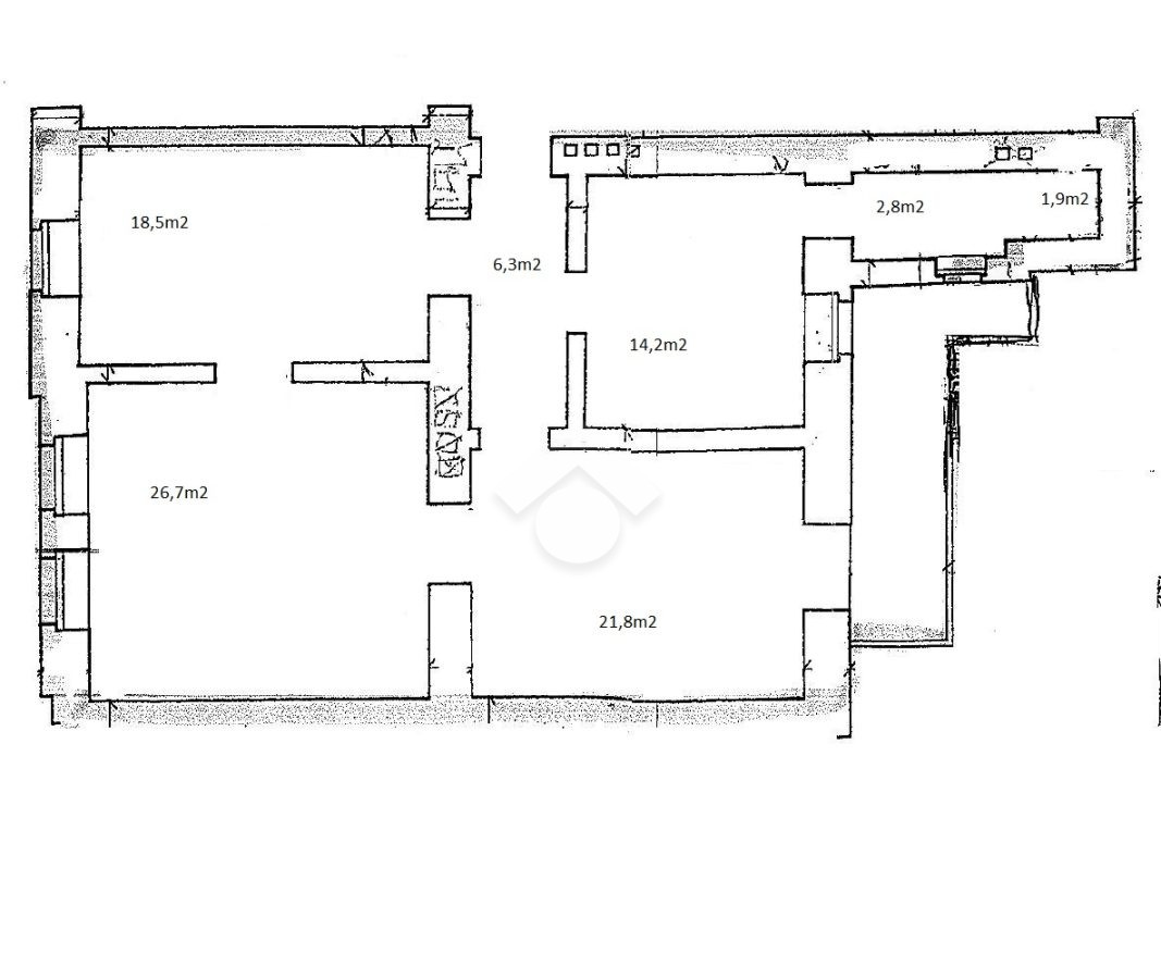
Powierzchnia
93m2
Piętro
parter
Ilość pokoi
4
Ilość łazienek
2
Ilość balkonów
1
Kuchnia
1
Winda
Nie
Piwnica
Tak
Typ ogrzewania
gazowe
Instalacje w budynku
prąd, gaz
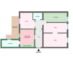
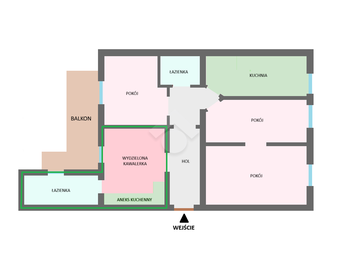
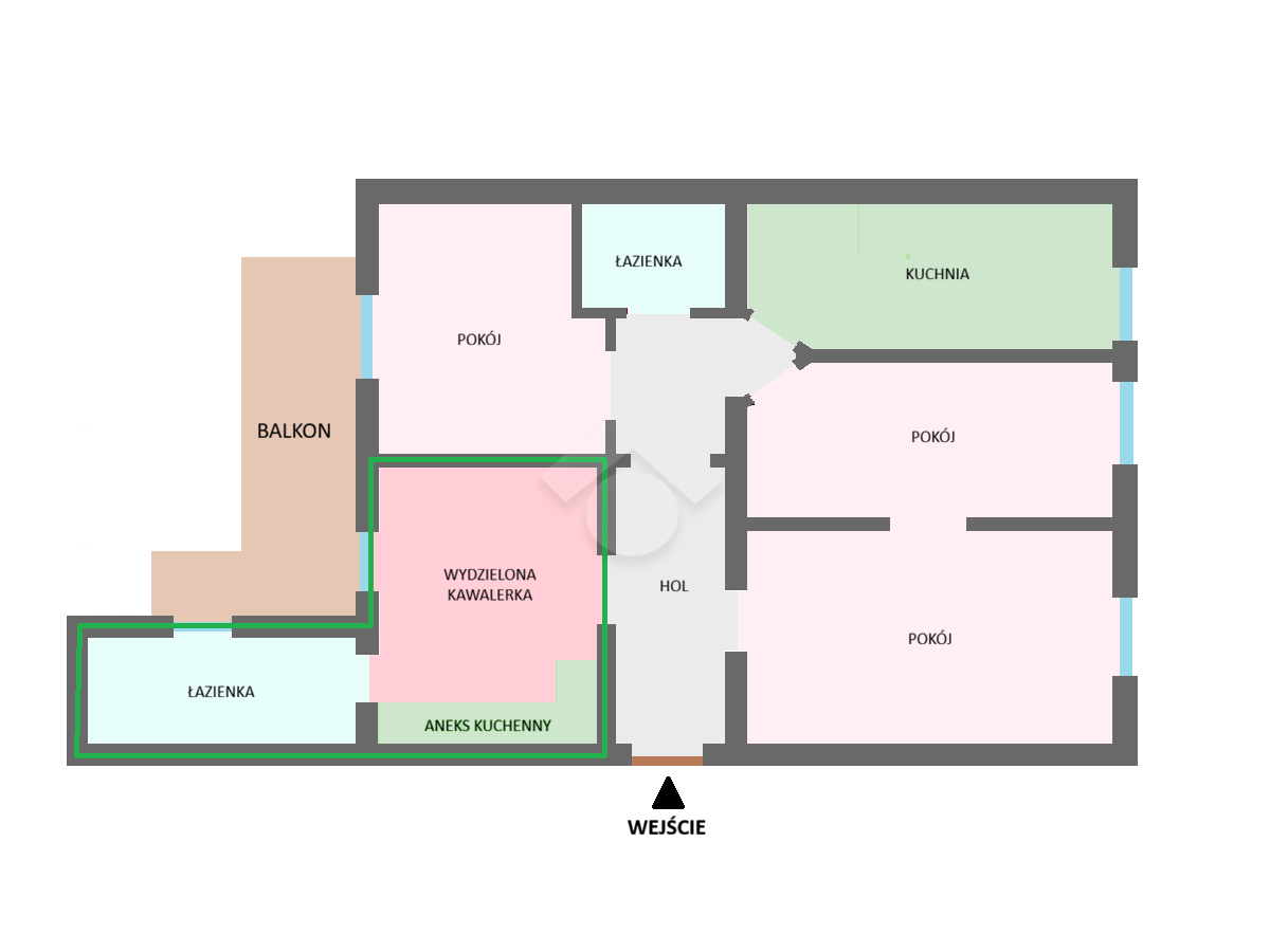
Kraków – Stare Miasto – ul. Łobzowska – 4 pokoje – 93 m2
Nieruchomość: Mieszkanie o powierzchni 93 m2, ulokowane na parterze w kamienicy przy ul. Łobzowskiej. Nieruchomość składa czterech oddzielnych pokoi, wydzielonej kuchni, przedpokoju i łazienki z WC. Dodatkowo, jeden z pokoi posiada samodzielny aneks kuchenny i łazienkę. Dwustronna ekspozycja. Ogrzewanie gazowe.
Stan mieszkania: Bardzo dobry – mieszkanie po remoncie, w stanie do zamieszkania. Umeblowane, wyposażone i stylowo wykończone z wysokiej jakości materiałów. Funkcjonalny układ mieszkania sprawdzi się zarówno jako nieruchomość do zamieszkania dla siebie, jak i doskonała inwestycja pod wynajem.
Stan budynku: Bardzo dobry – mieszkanie znajduje się w przedwojennej kamienicy po renowacji zarówno elewacji, jak i klatki schodowej.
Lokalizacja: Nieruchomość znajduje się w jednej z najbardziej pożądanych lokalizacji w Krakowie, ulokowany niedaleko Plant Krakowskich i samego Rynku Głównego. W kilkanaście minut pieszo można dotrzeć do Rynku Głównego, do najbliższego przystanku komunikacji miejskiej w 5 minut. W pobliżu sporo sklepów i usług, niedaleko znajdują się główne krakowskie uczelnie.
Powyższa oferta ma charakter informacyjny i nie stanowi oferty handlowej w rozumieniu art. 66 §1 Kodeksu Cywilnego.
Zgodnie z ustawą o gospodarce nieruchomościami Rozdział 2, Art. 180, pkt 3. przed oglądnięciem nieruchomości należy podpisać standardową umowę pośrednictwa w kupnie. (USTAWA z dnia 21 sierpnia 1997 r. O gospodarce nieruchomościami).
Kontakt:
Agencja Nieruchomości Studio Stare Miasto
Oddział XIV: Stare Miasto, Rynek Główny
ul. Łobzowska 2
31-140 Kraków
Nieruchomość proponowana przez

Studio Stare Miasto T. Sarata, M. Polaczek s.c.
ul. Łobzowska 2
tel. 600 638 099
krmm2@tecnocasa.pl