KRMS1/0306
Numer referencyjny KRMS1/0306
Nieruchomość proponowana przez

Agencja Nieruchomości Salwator Daniel Piasecki
ul. Kościuszki 73
tel. 534 534 605
krms1@tecnocasa.pl
Rodzaj transakcji
wynajem
Czynsz
0złzł
Dostępność
od zaraz
Województwo
małopolskie
Miasto
Kraków
Dzielnica
Salwator
Ulica
Św. Bronislawy
Rodzaj nieruchomości
mieszkanie
Forma własności
Własność
Typ zabudowy
kamienica
Materiał budynku
cegła
Stan techniczny
Bardzo dobry
Rynek
Wtórny
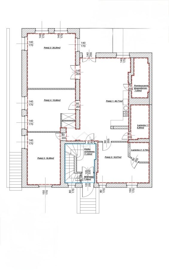
Powierzchnia
150m2
Piętro
wysoki parter
Dostępne media
prąd, gaz, woda, internet
Ilość pokoi
5
Ilość łazienek
2
Ilość balkonów
1
Kuchnia
aneks kuchenny
Typ ogrzewania
Centralne
Instalacje w budynku
wymienione
5 pokojowe mieszkanie w zadbanej kamienicy na Wzgórzu Św. Bronisławy
Kraków – Salwator – ul. Św. Bronisławy
Nieruchomość: Przedmiotem ogłoszenia jest wynajem przestronnego 5 – pokojowego mieszkania o powierzchni 150 m2, znajdującego się na wysokim parterze wolnostojącego, ogrodzonego budynku w stylu willowym. W budynku znajdują się tylko 3 mieszkania co nadaje nieruchomości kameralny charakter.
Nieruchomość składa się z:
Istnieje możliwość parkowania samochodu na terenie posesji.
Stan mieszkania: Mieszkanie w stanie bardzo dobrym. Nieruchomość kilka lat temu przeszło gruntowny remont. Część kuchenna wyposażona została w zabudowę na wymiar wraz ze sprzętami AGD oraz użytkową wyspę. Pokoje częściowo wyposażone. W pierwszej łazience znajduje się wanna, dwie umywalki oraz WC. W drugiej łazience znajduje się prysznic, umywalka oraz WC.
Media: Ogrzewanie mieszkania z pieca gazowego (nowy piec), woda, prąd, internet.
Lokalizacja: Mieszkanie położone jest na krakowskim Salwatorze przy ulicy Św. Bronisławy. To spokojna, zielona i prestiżowa lokalizacja położona na zboczu wzgórza Salwator, jednej z najbardziej klimatycznych części miasta. Okolica charakteryzuje się niską zabudową, dużą ilością zieleni oraz bliskością terenów rekreacyjnych, takich jak Kopiec Kościuszki czy Las Wolski.
To idealne miejsce dla osób ceniących ciszę i prywatność, a jednocześnie szybki dostęp do centrum – dojazd do Starego Miasta zajmuje zaledwie kilka minut. Ulica jest dobrze skomunikowana, a w pobliżu znajdują się przystanki komunikacji miejskiej oraz lokalne sklepy i usługi.
Okolica łączy kameralny, willowy charakter z bliskością centrum – szybki dojazd tramwajem oraz spacerowa odległość do Starego Miasta i Wawelu. W sąsiedztwie znajdują się bulwary wiślane, Kopiec Kościuszki i liczne tereny rekreacyjne, idealne do aktywnego wypoczynku. To lokalizacja ceniona za spokój, estetykę i wysoką jakość życia.
Cena: 8.000 zł plus media (gaz, prąd, woda)
INFORMACJE DODATKOWE
Przed prezentacją nieruchomości konieczne jest podpisanie umowy pośrednictwa w najmie. Prowizja płatna po podpisaniu umowy najmu.
Treść ogłoszenia nie stanowi oferty w rozumieniu Kodeksu Cywilnego.
Nieruchomość proponowana przez

Agencja Nieruchomości Salwator Daniel Piasecki
ul. Kościuszki 73
tel. 534 534 605
krms1@tecnocasa.pl