KRMO3/0110
Numer referencyjny KRMO3/0110
Nieruchomość proponowana przez

Studio Nowa Huta 2 Ł. Krzesiwo, M. Polaczek s.c.
Os. Oświecenia 33/A
tel. 579499291
krmo3@tecnocasa.pl
Rodzaj transakcji
sprzedaż
Dostępność
Do ustalenia
Województwo
małopolskie
Miasto
Węgrzce
Ulica
C11
Rodzaj nieruchomości
dom
Forma własności
Własność
Typ zabudowy
bliźniak
Rok budowy
2009
Materiał budynku
pustak
Stan techniczny
Bardzo dobry
Rynek
Wtórny
Powierzchnia
173m2
Dostępne media
Prąd, woda, gaz, C.O
Ilość pokoi
5
Ilość łazienek
2
Ilość balkonów
1
Kuchnia
Aneks kuchenny
Winda
Nie
Piwnica
Nie
Typ ogrzewania
Piec gazowy
Instalacje w budynku
Nowe
WĘGRZCE – UL. C11
NIERUCHOMOŚĆ:
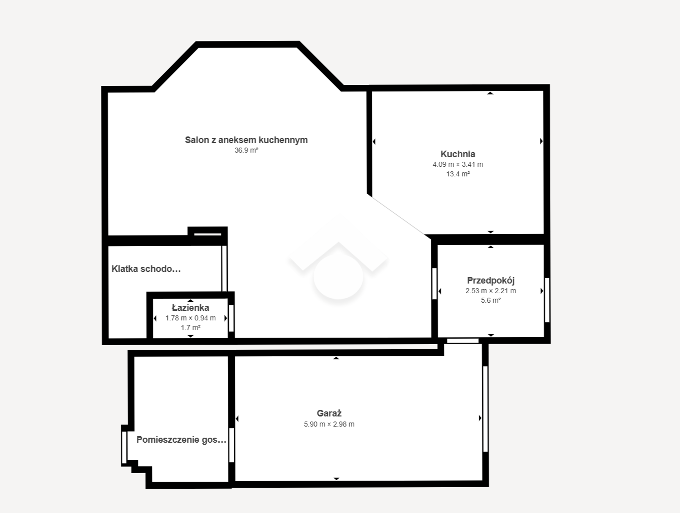
Na sprzedaż dom jednorodzinny w zabudowie bliźniaczej, położony w miejscowości Węgrzce. Powierzchnia użytkowa domu wynosi 173 m², a powierzchnia działki to 3,5 ara. Nieruchomość znajduje się w spokojnej okolicy, w otoczeniu domów jednorodzinnych. W bryle budynku znajduje się garaż jednostanowiskowy.
W skład nieruchomości wchodzą:
Parter:
Piętro I:
STAN DOMU:
Dom w bardzo dobrym stanie technicznym, wybudowany z pustaka ceramicznego. Dach ocieplony wełną szklaną. Na podłogach w salonie i sypialniach położona jest deska barlinecka. Okna nowe, drewniane, dwuszybowe. Dom bardzo dobrze doświetlony. Kuchnia w pełni wyposażona – lodówka, czteropunktowa płyta indukcyjna, piekarnik, zlew, zmywarka.
Na piętrze znajdują się cztery sypialnie oraz łazienka z kabiną prysznicową, wanną i umywalką. Jedna z sypialni posiada wyjście na balkon oraz garderobę. Ogrzewanie gazowe – piec dwufunkcyjny. Dom podłączony do miejskiej kanalizacji oraz sieci wodociągowej. Dodatkowe udogodnienia: system alarmowy, automatyczna brama garażowa na pilota, wentylacja grawitacyjna, stacja zmiękczania wody. W pomieszczeniu gospodarczym znajduje się pralka.
Wszystkie meble widoczne na zdjęciach są wliczone w cenę.
DZIAŁKA:
Działka budowlana o wymiarach 14,5 m x 22 m. Ogród zadbany i zagospodarowany. Podjazd oraz teren wokół domu wyłożone kostką brukową. Działka jest ogrodzona drewnianym płotem, co zapewnia prywatność i bezpieczeństwo.
LOKALIZACJA:
Nieruchomość położona jest w spokojnej, zielonej okolicy Węgrzc, z dogodnym dojazdem do centrum Krakowa w ciągu około 10 minut. Dom znajduje się w otoczeniu zabudowy jednorodzinnej, co zapewnia ciszę i komfort. W odległości około 6 minut pieszo znajduje się przystanek „Węgrzce Błonie”, obsługiwany przez linie autobusowe 217 oraz 247. Najbliższy sklep spożywczy „Biedronka” znajduje się w odległości około 9 minut jazdy samochodem. W bliskim sąsiedztwie, zaledwie 4 minuty samochodem, usytuowane jest centrum handlowe „ATUT”, w którym mieszczą się m.in. Rossmann, Media Expert, Pepco oraz inne.
PODSUMOWANIE:
BIERZESZ KREDYT?
W naszej Agencji posiadamy własny Dział Finansowania Nieruchomości. Współpracujemy z wieloma bankami, spośród których nasz doradca pomoże Państwu wybrać najlepszą ofertę. U nas mogą Państwo spodziewać się najkorzystniejszej indywidualnej oferty dopasowanej do Państwa potrzeb, kompleksowego objaśnienia zasad przyznawania kredytu, wykonania wszystkich formalności oraz przeprowadzenia całego procesu krok po kroku w jednym miejscu.
Bądź na bieżąco!
Facebook: Tecnocasa Oświecenia – Agencja Nieruchomości
Instagram: @tecnocasaoswiecenia
Zapraszamy na prezentację nieruchomości!
Nieruchomość proponowana przez

Studio Nowa Huta 2 Ł. Krzesiwo, M. Polaczek s.c.
Os. Oświecenia 33/A
tel. 579499291
krmo3@tecnocasa.pl