KRMR4/0190
Numer referencyjny KRMR4/0190
Nieruchomość proponowana przez

Agencja Nieruchomości Wola Duchacka Adrian Perlak, Tomasz Wójciak s.c.
Walerego Sławka 25/LU3
tel. 881487880
krmr4@tecnocasa.pl
Rodzaj transakcji
sprzedaż
Dostępność
Od zaraz
Województwo
małopolskie
Miasto
Kraków
Dzielnica
Wola Duchacka
Ulica
Monterska
Rodzaj nieruchomości
dom
Forma własności
Własność
Typ zabudowy
dom wolnostojący
Rok budowy
1930
Materiał budynku
cegła
Stan techniczny
Do odświeżenia
Rynek
Wtórny
Powierzchnia
200m2
Dostępne media
woda, gaz, prąd, kanalizacja
Ilość pokoi
9
Ilość łazienek
3
Kuchnia
Osobna
Piwnica
Tak
Typ ogrzewania
Miejskie
Dostępne w pobliżu
Nieruchomość położona jest w dzielnicy Wola Duchacka. Cechuje się ona licznymi terenami zielonymi i rekreacyjnymi, pełną infrastrukturą i bliskim dostępem do centrum miasta poprzez świetnie rozbudowaną komunikację miejską. • W bliskiej okolicy Centrum Handlowe Bonarka, w zasięgu ręki sklepy (m.in. Lidl, Biedronka, Żabka), przedszkole, szkoła, apteka. • Dojazd do samego centrum Krakowa samochodem zajmuje około 15 minut, a komunikacją miejską około 20 minut. • Najbliższy przystanek autobusowy "Wola Duchacka" znajduje się w odległości tylko 250 m (3 minuty pieszo).
Ponadczasowy Dom Z Potencjałem Inwestycyjnym
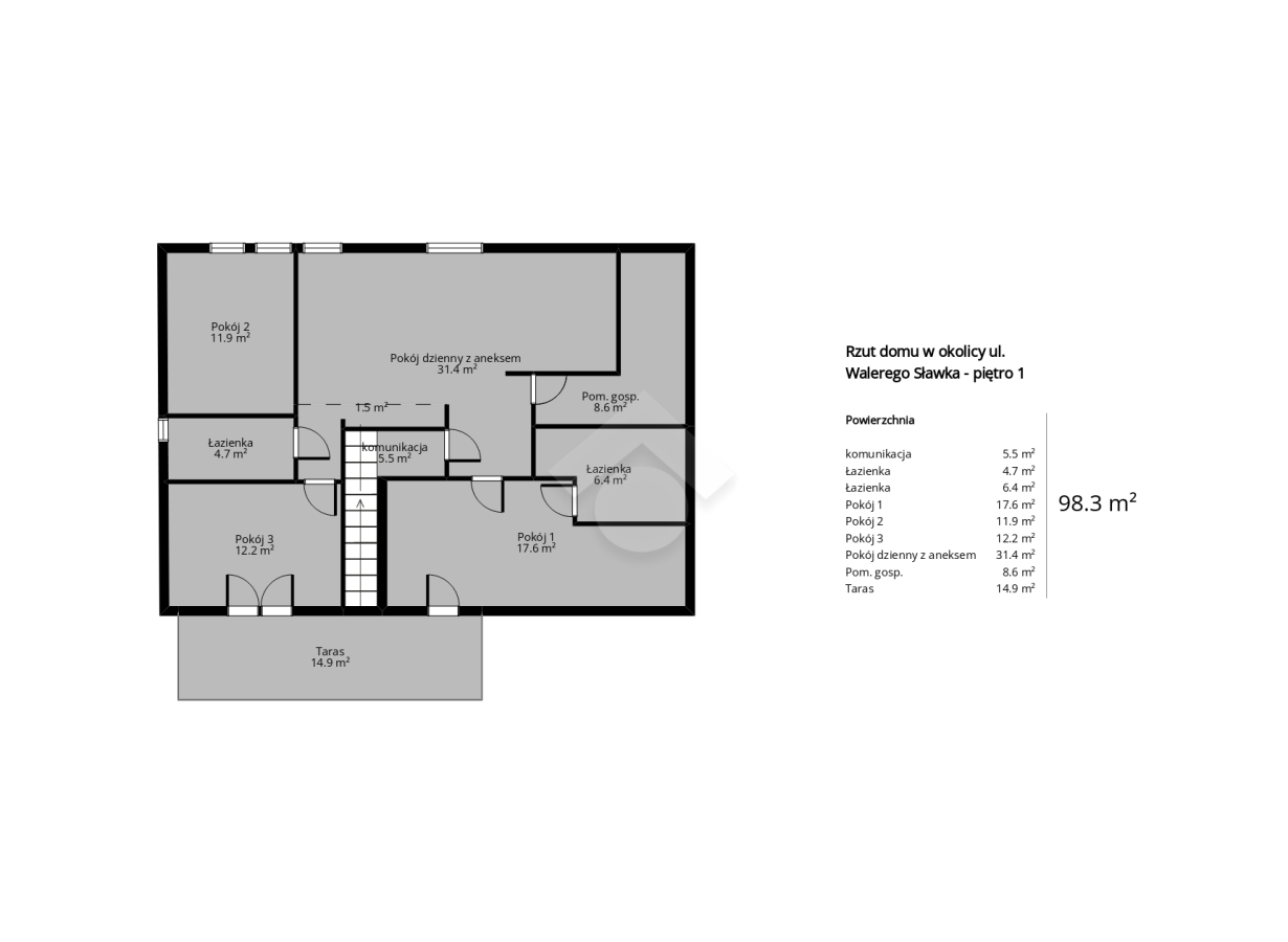
Mamy przyjemność zaprezentować Państwu wyjątkowy dom, który stanowi doskonałą propozycję zarówno dla rodziny, jak i dla inwestora szukającego nieruchomości z potencjałem pod podział na trzy niezależne mieszkania. Dom o powierzchni 200 m2 zlokalizowany jest w południowej dzielnicy Krakowa, na Woli Duchackiej w okolicach ulicy Walerego Sławka.
Oferta na wyłączność – tylko u nas!
We speak English. If you’re interested in this particular apartment, contact with us.
NAJWAŻNIEJSZE INFORMACJE
LOKALIZACJA
Nieruchomość położona jest w dzielnicy Wola Duchacka. Cechuje się ona licznymi terenami zielonymi i rekreacyjnymi, pełną infrastrukturą i bliskim dostępem do centrum miasta poprzez świetnie rozbudowaną komunikację miejską.
NIERUCHOMOŚĆ
Pełne wyposażenie wszystkich pomieszczeń.
Nieruchomość jest w stanie dobrym/do odświeżona.
– I kondygnacja
Lokal nr 1
Lokal nr 2
– II kondygnacja
Dom można zagospodarować
INFORMACJE TECHNICZNE
Ogrzewanie: CO miejskie (MPEC)
Woda: Miejska (MPEC)
Okna: Plastikowe PCV
Podłogi: Panele i płytki
STAN PRAWNY
Nieruchomość posiada księgę wieczystą, w której znajdziemy wyodrębnione 2 lokale.
Cena: 1 699 000 PLN
Zadzwoń i zapytaj o szczegóły!
Kredyt hipoteczny z Agencją Nieruchomości Tecnocasa
W naszej Agencji posiadamy własny Dział Finansowania Nieruchomości. Współpracujemy z największymi bankami, spośród których nasz doradca pomoże Państwu wybrać najlepszą ofertę. U nas mogą Państwo spodziewać się najkorzystniejszej indywidualnej oferty dopasowanej do Państwa potrzeb, kompleksowego objaśnienia zasad przyznawania kredytu, wykonania wszystkich formalności oraz przeprowadzenia całego procesu krok po kroku w jednym miejscu.
Powyższa oferta ma charakter informacyjny i nie stanowi oferty handlowej w rozumieniu art. 66 §1 Kodeksu Cywilnego
Zgodnie z ustawą o gospodarce nieruchomościami Rozdział 2, Art. 180, pkt 3. przed oglądnięciem nieruchomości należy podpisać standardową umowę pośrednictwa w kupnie. (USTAWA z dnia 21 sierpnia 1997 r. O gospodarce nieruchomościami).
Nieruchomość proponowana przez

Agencja Nieruchomości Wola Duchacka Adrian Perlak, Tomasz Wójciak s.c.
Walerego Sławka 25/LU3
tel. 881487880
krmr4@tecnocasa.pl