KRMK5/0102
Numer referencyjny KRMK5/0102
Nieruchomość proponowana przez

Biuro Nieruchomości Kurdwanów
Turniejowa 73F/50
tel. 884877838
krmk5@tecnocasa.pl
Czynsz
500zł
Dostępność
Od zaraz
Miasto
Kraków
Dzielnica
Kurdwanów
Ulica
Tuchowska
Rodzaj nieruchomości
mieszkanie
Forma własności
Własność
Typ zabudowy
blok
Rok budowy
2002
Materiał budynku
cegła
Stan techniczny
dobry, gotowe do zamieszkania
Rynek
Wtórny
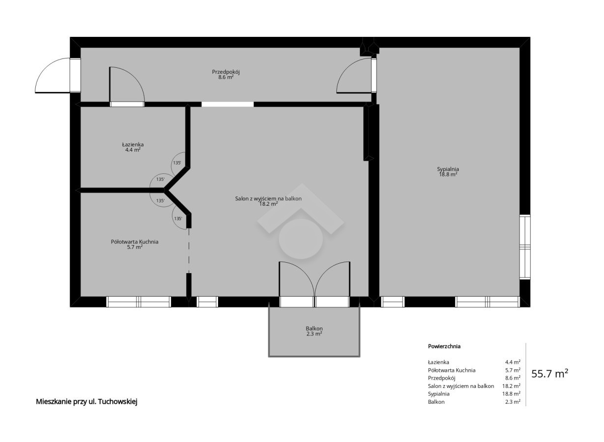
Powierzchnia
55,72m2
Piętro
1
Ilość pokoi
2
Ilość łazienek
1
Ilość balkonów
1
Kuchnia
aneks
Typ ogrzewania
C.O lokalne
Tecnocasa prezentuje na sprzedaż mieszkanie o powierzchni 55,72 m² przy ulicy Tuchowskiej w Krakowie – Kurdwanów / Podgórze Duchackie.
Oferta na wyłączność.
We speak English. If you’re interested in this particular apartment, contact us.
Najważniejsze informacje:
Funkcjonalny układ pomieszczeń
Liczba pokoi: 2 (sypialnia + salon z aneksem kuchennym)
Piętro: 1/3
Balkon
Komórka lokatorska: 9,13 m²
Parking: za szlabanem, ogólnodostępny dla mieszkańców na terenie osiedla
Stan: dobry, gotowe do zamieszkania
Ekspozycja okien: wschód / północny-wschód
Typ budynku: blok mieszkalny
Rok budowy: 2002
Ogrzewanie: C.O. lokalne
Mieszkanie:
Nieruchomość położona jest na 1. piętrze kameralnego, 3-piętrowego budynku z 2002 roku, usytuowanego na ogrodzonym i monitorowanym terenie.
Lokal jest jasny, zadbany i nie wymaga dodatkowych nakładów finansowych.
W skład mieszkania wchodzą:
Salon z aneksem kuchennym i wyjściem na balkon
Sypialnia
Łazienka z WC
Przedpokój
Z balkonu rozpościera się widok na tereny zielone, co zapewnia ciszę i komfort wypoczynku.
Do mieszkania przynależy komórka lokatorska o powierzchni 9,13 m², zlokalizowana na poziomie 0.
Atuty:
Kameralny, ogrodzony i monitorowany budynek
Balkon z widokiem na zieleń
Duża komórka lokatorska
Funkcjonalny i ustawny układ pomieszczeń
Mieszkanie gotowe do zamieszkania
Spokojna, zielona okolica
Ogólnodostępny parking dla mieszkańców
Lokalizacja:
Mieszkanie położone jest w dobrze skomunikowanej części Krakowa – Kurdwanów, przy ul. Tuchowskiej.
W pobliżu pełna infrastruktura handlowo-usługowa: Lidl, Biedronka, sklepy osiedlowe, szkoły i przedszkola.
Kilka minut pieszo do przystanków tramwajowych i autobusowych (skrzyżowanie ul. Witosa i Nowosądeckiej), zapewniających szybki dojazd do centrum miasta.
W niedalekiej odległości Szpital Św. Rafała oraz tereny zielone.
Finanse:
Cena: 739 000 PLN
Stan prawny:
Pełna własność
Dostępność:
Mieszkanie dostępne od zaraz.
Zadzwoń i umów się na prezentację!
Agencja Nieruchomości Tecnocasa
Oddział XIII – Kurdwanów
Turniejowa 73F/50
Powyższa oferta ma charakter informacyjny i nie stanowi oferty handlowej w rozumieniu art. 66 §1 Kodeksu Cywilnego.
Zgodnie z ustawą o gospodarce nieruchomościami, przed obejrzeniem nieruchomości wymagane jest podpisanie standardowej umowy pośrednictwa.
Tecnocasa presents for sale a 55.72 m² apartment located on Tuchowska Street in Kraków – Kurdwanów / Podgórze Duchackie.
Exclusive listing.
We speak English. If you are interested in this property, please contact us.
Functional and well-designed layout
Number of rooms: 2 (bedroom + living room with kitchenette)
Floor: 1 of 3
Balcony
Storage unit: 9.13 m²
Parking: gated, shared parking available exclusively for residents within the estate
Condition: good, ready to move in
Window exposure: east / northeast
Building type: residential apartment block
Year of construction: 2002
Heating: local central heating
The apartment is located on the first floor of an intimate, three-story residential building constructed in 2002, situated within a fenced and monitored complex.
The property is bright, well maintained, and does not require any additional financial investment.
The apartment consists of:
Living room with kitchenette and access to the balcony
Bedroom
Bathroom with toilet
Entrance hall
The balcony overlooks green areas, ensuring peace, quiet, and a comfortable living environment.
A private storage unit with an area of 9.13 m², located on level 0, is included with the apartment.
Intimate, fenced, and monitored building
Balcony with a view of green spaces
Large storage unit
Functional and spacious layout
Apartment ready for immediate occupancy
Quiet, green surroundings
Shared parking available for residents
The apartment is located in a well-connected area of Kraków – Kurdwanów, on Tuchowska Street.
The neighborhood offers full commercial and service infrastructure, including Lidl, Biedronka, local shops, schools, and kindergartens.
Tram and bus stops are just a few minutes’ walk away (intersection of Witosa and Nowosądecka Streets), providing quick and convenient access to the city center.
St. Raphael’s Hospital and green recreational areas are also located nearby.
Price: PLN 739,000
Full ownership.
Available immediately.
Call us today to schedule a viewing!
Tecnocasa Real Estate Agency
Branch XIII – Kurdwanów
Turniejowa 73F/50
This listing is for informational purposes only and does not constitute a commercial offer within the meaning of Article 66 §1 of the Polish Civil Code.
In accordance with the Act on Real Estate Management, signing a standard brokerage agreement is required prior to viewing the property.
Nieruchomość proponowana przez

Biuro Nieruchomości Kurdwanów
Turniejowa 73F/50
tel. 884877838
krmk5@tecnocasa.pl