KRMR4/0200
Numer referencyjny KRMR4/0200
Nieruchomość proponowana przez

Agencja Nieruchomości Wola Duchacka Adrian Perlak, Tomasz Wójciak s.c.
Walerego Sławka 25/LU3
tel. 881487880
krmr4@tecnocasa.pl
Rodzaj transakcji
sprzedaż
Czynsz
650zł
Dostępność
do ustalenia
Województwo
małopolskie
Miasto
Kraków
Dzielnica
Wola Duchacka
Ulica
Gołaśka
Rodzaj nieruchomości
mieszkanie
Forma własności
Własność
Typ zabudowy
blok
Rok budowy
1980
Materiał budynku
wielka płyta
Stan techniczny
Dobry
Rynek
Wtórny
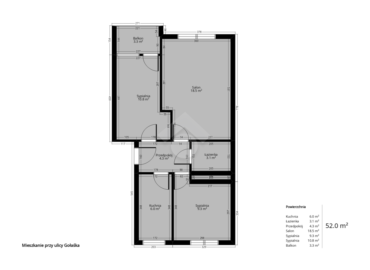
Powierzchnia
52m2
Piętro
4
Ilość pokoi
3
Ilość łazienek
1
Ilość balkonów
1
Kuchnia
1
Piwnica
Tak
Wysokość pomieszczeń
2,55mm
Typ ogrzewania
MPEC
Instalacje w budynku
Instalacja gazowa
Dodatkowe udogodnienia
Blisko mieszkania znajduje się pętla tramwajowa i przystanek autobusowy
Mamy przyjemność zaprezentować Państwu przytulne i ustawne trzypokojowe mieszkanie o powierzchni 52 m2 zlokalizowane w południowej dzielnicy Krakowa Woli Duchackiej, przy ulicy Gołaśka.
Oferta na wyłączność.
We speak English. If you’re interested in this particular apartment, contact with us.
Najważniejsze informacje:
Lokalizacja:
Ogromną zaletą nieruchomości jest lokalizacja, gdyż pozwala na zamieszkanie w spokojnej i cichej okolicy jednocześnie korzystając z atutów mieszkania w dużym mieście.
Budynek zlokalizowany jest w Krakowie w dzielnicy Wola Duchacka. Przystanki tramwajowe oraz autobusowe (Witosa i Kurdwanów P+R) znajdują się ok. 4 minut pieszo, a dojazd do centrum zajmuje ok. 20 minut.
Punkty w okolicy inwestycji:
MIESZKANIE
Nieruchomość położona jest na 4 piętrze w 4 piętrowym kameralnym budynku z lat 80 bez windy.
Mieszkanie jest w dobrym stanie, do ewentualnej aranżacji. Nie wymaga dużego wkładu finansowego.
Okna skierowane są na wschód oraz zachód – przed oknami tereny zielone.
INFORMACJE TECHNICZNE
Ogrzewanie: CO miejskie (MPEC)
Woda: Miejska (MPEC)
Podłogi: Panele oraz płytki
FINANSE:
Czynsz wynosi ok. 650 zł + media według zużycia (W czynszu jest m.in. eksploatacja, zarządzanie, ubezpieczenie budynku, fundusz remontowy, opłata przekształcenia, podatek od nieruchomości, zaliczka na wodę ciepłą oraz zimną)
STAN PRAWNY:
Pełna własność z Księgą Wieczystą.
Możliwa zamiana na mieszkanie na parterze lub na pierwszym piętrze.
Cena ofertowa: 649 000 PLN (do negocjacji)
Zadzwoń i umów się na prezentację!
Agencja Nieruchomości Tecnocasa
Oddział XII: Wola Duchacka
Walerego Sławka 25/LU3
Kredyt hipoteczny z Agencją Nieruchomości Tecnocasa
W naszej Agencji posiadamy własny Dział Finansowania Nieruchomości. Współpracujemy z największymi bankami, spośród których nasz doradca pomoże Państwu wybrać najlepszą ofertę. U nas mogą Państwo spodziewać się najkorzystniejszej indywidualnej oferty dopasowanej do Państwa potrzeb, kompleksowego objaśnienia zasad przyznawania kredytu, wykonania wszystkich formalności oraz przeprowadzenia całego procesu krok po kroku w jednym miejscu.
Zgodnie z ustawą o gospodarce nieruchomościami Rozdział 2, Art. 180, pkt 3. przed oglądnięciem nieruchomości należy podpisać standardową umowę pośrednictwa w kupnie. (USTAWA z dnia 21 sierpnia 1997 r. O gospodarce nieruchomościami).
Treść niniejszego ogłoszenia nie stanowi oferty handlowej w rozumieniu Kodeksu Cywilnego.
Nieruchomość proponowana przez

Agencja Nieruchomości Wola Duchacka Adrian Perlak, Tomasz Wójciak s.c.
Walerego Sławka 25/LU3
tel. 881487880
krmr4@tecnocasa.pl