KRMR4/0253
Numer referencyjny KRMR4/0253
Nieruchomość proponowana przez

Agencja Nieruchomości Wola Duchacka Adrian Perlak, Tomasz Wójciak s.c.
Walerego Sławka 25/LU3
tel. 881487880
krmr4@tecnocasa.pl
Rodzaj transakcji
sprzedaż
Czynsz
1028zł
Dostępność
Od zaraz
Województwo
małopolskie
Miasto
Kraków
Dzielnica
Wola Duchacka
Ulica
Walerego Sławka
Rodzaj nieruchomości
mieszkanie
Forma własności
Własność
Typ zabudowy
blok
Rok budowy
1980
Materiał budynku
wielka płyta
Stan techniczny
Bardzo dobry
Rynek
Wtórny
Powierzchnia
59,19m2
Piętro
2
Dostępne media
woda, prąd, gaz, kanalizacja
Ilość pokoi
3
Ilość łazienek
2
Ilość balkonów
1
Kuchnia
Osobna
Winda
Tak
Piwnica
Tak
Wysokość pomieszczeń
255m
Typ ogrzewania
MPEC
Instalacje w budynku
Dobry
Dostępne w pobliżu
Sklep Lidl – 800 m (10 minut pieszo) Restauracja – 200 m (3 minuty pieszo) Żłobek – 150 m (3 minuty pieszo) Apteka – 500 m (7 minut pieszo) Przystanki komunikacji miejskiej – 130 m (2minuty pieszo) Szkoły podstawowe – w promieniu 10 minut pieszo Centrum handlowe „Bonarka” – 1000m (15 minut pieszo)
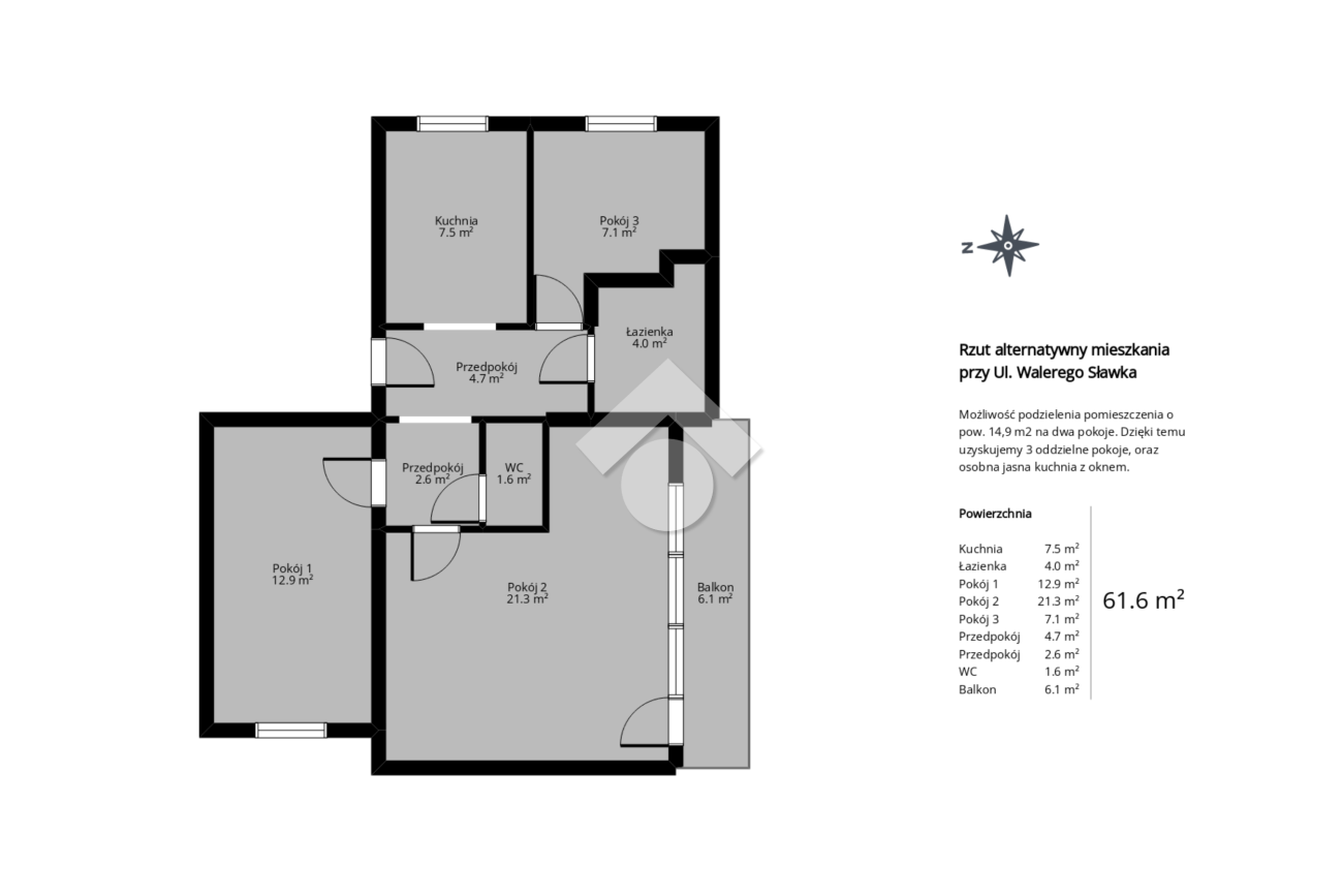
Z przyjemnością przedstawiamy Państwu ofertę sprzedaży 3-pokojowego mieszkania o powierzchni 59,19 m², usytuowanego na 2 piętrze w 10-piętrowym bloku z lat 80.
Mieszkanie znajduje się w doskonale skomunikowanej dzielnicy Podgórze Duchackie, przy ul. Walerego Sławka w Krakowie.
Oferta dostępna wyłącznie w naszej agencji!
We speak English. If you’re interested in this particular apartment, contact with us.
PARAMETRY MIESZKANIA
LOKALIZACJA
Mieszkanie położone jest w świetnie skomunikowanej okolicy. W pobliżu znajdują się przystanki tramwajowe i autobusowe (Wola Duchacka 120m), zapewniające szybki dojazd do centrum miasta. Bliskość trzeciej obwodnicy ułatwia przemieszczanie się po Krakowie samochodem.
W okolicy znajdą Państwo wszystko, co potrzebne do wygodnego życia: sklepy (Lidl – 800m, Biedronka), restauracje, apteki oraz punkty usługowe. Rodziny z dziećmi docenią bliskość szkół, żłobków i placówek edukacyjnych.
Dla miłośników aktywnego spędzania czasu dostępne są zielone tereny rekreacyjne oraz liczne obiekty sportowe.
Odległości do najbliższych punktów:
STANDARD WYKOŃCZENIA I INFORMACJE TECHNICZNE
Budynek z 1980 roku, wyposażony w windę.
Mieszkanie w stanie do remontu.
STAN PRAWNY
Pełna własność z Księgą Wieczystą.
FINANSE
Zapraszamy do kontaktu!
Nasi doradcy finansowi pomogą Państwu uzyskać najkorzystniejszą ofertę kredytową oraz przeprowadzą przez cały proces zakupu nieruchomości.
Zgodnie z ustawą o gospodarce nieruchomościami przed prezentacją nieruchomości wymagane jest podpisanie standardowej umowy pośrednictwa.
Treść ogłoszenia nie stanowi oferty handlowej w rozumieniu Kodeksu Cywilnego.
We are pleased to present to you an offer for the sale of a 3-room apartment with an area of 59,19 m², located on the 2th floor of a 10-story building from the 1980s.
The apartment is situated in the well-connected district of Podgórze Duchackie, at Walerego Sławka Street in Kraków.
This offer is available exclusively through our agency!
We speak English. If you’re interested in this particular apartment, feel free to contact us.
APARTMENT PARAMETERS
LOCATION
The apartment is located in a well-connected area. Nearby, you will find tram and bus stops (Wola Duchacka – 120 m), providing quick access to the city center. The proximity to the third ring road makes it easy to travel around Kraków by car.
In the vicinity, you will find everything you need for comfortable living: shops (Lidl – 800 m, Biedronka), restaurants, pharmacies, and service points. Families with children will appreciate the closeness of schools, kindergartens, and educational institutions.
For those who enjoy an active lifestyle, there are green recreational areas and numerous sports facilities.
Distances to the nearest points:
FINISHING STANDARD AND TECHNICAL INFORMATION
FINANCIALS
LEGAL STATUS
We invite you to contact us!
Our financial advisors will assist you in obtaining the best credit offer and guide you through the entire property purchase process.
According to the Real Estate Management Act, signing a standard agency agreement is required before property presentation.
This announcement does not constitute a commercial offer under the Civil Code.
Nieruchomość proponowana przez

Agencja Nieruchomości Wola Duchacka Adrian Perlak, Tomasz Wójciak s.c.
Walerego Sławka 25/LU3
tel. 881487880
krmr4@tecnocasa.pl