KRMS1/0268
Numer referencyjny KRMS1/0268
Nieruchomość proponowana przez

Agencja Nieruchomości Salwator Daniel Piasecki
ul. Kościuszki 73
tel. 534 534 605
krms1@tecnocasa.pl
Rodzaj transakcji
sprzedaż
Dostępność
od zaraz
Województwo
małopolskie
Miasto
Kraków
Dzielnica
Salwator
Ulica
Wyczółkowskiego
Rodzaj nieruchomości
mieszkanie
Forma własności
Własność
Typ zabudowy
kamienica
Materiał budynku
cegła
Stan techniczny
Dobry
Rynek
Wtórny
Powierzchnia
150m2
Piętro
1 z 2
Dostępne media
prąd, gaz, woda, internet
Ilość pokoi
3
Ilość łazienek
2
Ilość balkonów
1
Kuchnia
osobna z oknem
Piwnica
Tak
Wysokość pomieszczeń
3.00m
Typ ogrzewania
Centralne gazowe
Dodatkowe udogodnienia
pierwsze piętro, garaż, balkon, duża piwnica, mieszkanie dobrze nasłonecznione, kameralna zabudowa, korzystny układ pomieszczeń.
Dostępne w pobliżu
Błonia, Plac Na Stawach, Rudawa, Kino Kijów, Salwator, Wzgórze Św. Bronisławy, Kopiec Kościuszki, Wisła.
Trzypokojowe mieszkanie w kameralnym budynku przy Błoniach
Kraków – Salwator – ul. Wyczółkowskiego
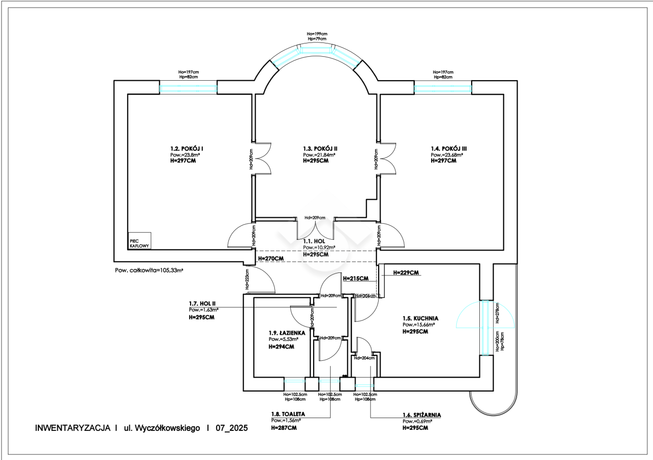
Nieruchomość: Przedmiotem ogłoszenia jest sprzedaż przestronnego 3 – pokojowego mieszkania o powierzchni 105 m2, znajdującego się na pierwszym piętrze wolnostojącego budynku w stylu willowym. W budynku znajdują się tylko 3 mieszkania co nadaje nieruchomości kameralny charakter.
Mieszkanie aktualnie składa się z: dużego hollu, trzech pokoi oraz kuchni z wyjsciem na balkon i spiżarką, łazienki oraz osobnego WC. Istnieje możliwość zmiany układu na mieszkanie 4 pokojowe.
W skład nieruchomości wchodzi dodatkowo duża piwnica o powierzchni około 30m2, miejsce w garażu oraz mozliwość korzystania z części ogrodu.
Stan mieszkania: Mieszkanie w stanie do remontu – na podłogach w pokojach znajduje się zadbany parkiet. Oryginalna stolarka drzwiowa oraz okienna . Mieszkanie posiada duże możliwości aranżacyjne. Nieruchomość posiada ekspozycję na trzy strony północ – południe – zachód.
Media: Ogrzewanie mieszkania z pieca gazowego, woda, prąd, internet.
Lokalizacja: Mieszkanie położone jest na krakowskim Salwatorze przy ulicy Wyczółkowskiego – jednej z najbardziej prestiżowych i zielonych dzielnic miasta. Okolica łączy kameralny, willowy charakter z bliskością centrum – szybki dojazd tramwajem oraz spacerowa odległość do Starego Miasta i Wawelu. W sąsiedztwie znajdują się bulwary wiślane, Kopiec Kościuszki i liczne tereny rekreacyjne, idealne do aktywnego wypoczynku. To lokalizacja ceniona za spokój, estetykę i wysoką jakość życia.
Cena: 3.249.000 zł (do negocjacji)
Dzięki współpracy z KIRON – działem finansowania sieci Tecnocasa – zapewniamy naszym klientom kompleksową obsługę w zakresie uzyskania najkorzystniejszego kredytu hipotecznego. Na miejscu dostępny jest doświadczony doradca finansowy, który pomoże dopasować ofertę do Twoich możliwości i oczekiwań.
Przed prezentacją nieruchomości, zgodnie z ustawą o gospodarce nieruchomościami (Dz.U. z 1997 r., art. 180 ust. 3), wymagane jest podpisanie umowy pośrednictwa.
Ogłoszenie nie stanowi oferty handlowej w rozumieniu Kodeksu Cywilnego.
Nieruchomość proponowana przez

Agencja Nieruchomości Salwator Daniel Piasecki
ul. Kościuszki 73
tel. 534 534 605
krms1@tecnocasa.pl