WRMN1/0227
Numer referencyjny WRMN1/0227
Nieruchomość proponowana przez

Studio Nadodrze Adrian Matjas, Dariusz Łukasik s.c.
ul. Łokietka 2
tel. +48733240623
wrmn1@tecnocasa.pl
Rodzaj transakcji
sprzedaż
Czynsz
1000zł
Dostępność
Od zaraz
Województwo
dolnośląskie
Miasto
Wrocław
Dzielnica
Nadodrze
Ulica
Łokietka
Rodzaj nieruchomości
mieszkanie
Forma własności
Własność
Typ zabudowy
kamienica
Rok budowy
1875
Materiał budynku
cegła
Stan techniczny
Do remontu, do odświeżenia
Rynek
Wtórny
Powierzchnia
95,33m2
Piętro
3
Dostępne media
Ogrzewanie i podgrzanie wody z sieci miejskiej
Ilość pokoi
3
Ilość łazienek
1
Kuchnia
Osobna z oknem
Winda
Nie
Piwnica
Tak
Wysokość pomieszczeń
3m
Typ ogrzewania
Miejskie
Instalacje w budynku
Dobry stan
Dostępne w pobliżu
Plac Św. Macieja – 100 m Drogeria Rossmann – 130 m Piekarnia „Gorąco Polecam” – 150 m Sklep „Żabka” – 160 m Sklep „Biedronka” – 300 m Wyspa Słodowa – 350 m Uniwersytet Wrocławski – 600 m Dworzec Wrocław Nadodrze – 1 km Ogród Botaniczny – 1 km Rynek – 1 km
Wrocław – Nadodrze – ul. Łokietka
Szukasz mieszkania w doskonałej lokalizacji we Wrocławiu? Marzysz o miejscu z duszą kamienicy, które możesz odnowić i urządzić po swojemu?
Nie szukaj dalej! Ta oferta jest właśnie dla Ciebie!
NIERUCHOMOŚĆ:
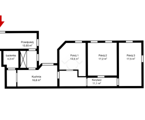
3-pokojowe mieszkanie na 3. piętrze z osobną kuchnią o łącznej powierzchni 95,33 m². Do mieszkania przynależy piwnica (7 m²).
W skład mieszkania wchodzi:
STAN MIESZKANIA:
Mieszkanie do remontu, położone w cichej części kamienicy – duże plastikowe okna wychodzą na podwórko, dzięki czemu w mieszkaniu jest cicho. W pokojach, korytarzu i przedpokoju położone są panele, natomiast w kuchni i łazience – kafelki. To idealna propozycja zarówno dla osób szukających lokum z potencjałem do własnej aranżacji, jak i dla inwestorów poszukujących mieszkania w świetnej lokalizacji.
EKSPOZYCJA:
Ekspozycja okien północno – wschodnia.
MEDIA:
Ogrzewanie i podgrzanie wody z sieci miejskiej.
LOKALIZACJA:
Wrocławskie Nadodrze to jedno z najbardziej urokliwych osiedli miasta, położone na północnym brzegu Odry. Łączy zabytkową architekturę z nowoczesnymi inwestycjami i artystycznym klimatem. Spacerując jego uliczkami, można podziwiać kolorowe murale, które nadają okolicy niepowtarzalny charakter. Dzięki bliskości centrum i doskonałej komunikacji Nadodrze przyciąga mieszkańców, turystów i inwestorów, stając się dynamicznie rozwijającą przestrzenią życia i kultury.
KOMUNIKACJA:
4 minuty pieszo do przystanku tramwajowego/autobusowego „Dubois” (linie: 6, 7, 14, 15, 19, 128, 132, 144, 250).
NAJBLIŻSZA OKOLICA:
PODSUMOWANIE:
CENA: 729 000 zł
Czynsz administracyjny: 1000 zł
Zapraszamy do umówienia się na bezpłatną prezentację nieruchomości.
Agencja Nieruchomości Tecnocasa
Oddział III NADODRZE
Ul. Władysława Łokietka 2/1b
tel. 733 240 823, 733 240 623
Nieruchomość proponowana przez

Studio Nadodrze Adrian Matjas, Dariusz Łukasik s.c.
ul. Łokietka 2
tel. +48733240623
wrmn1@tecnocasa.pl